OBJEKT:
Lager- und Aufbewahrungshalle für Wohnwagen.
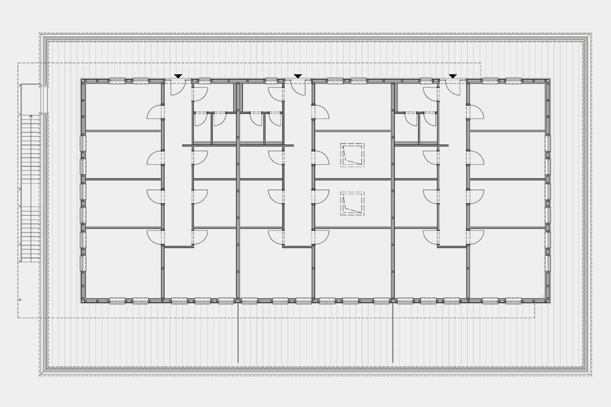
Büronutzung im Obergeschoss mit bis zu 3 Einheiten.

STANDORT:
Nahe Rosenheim

ZEITPLAN:
Bauplanung 2021
Bauzeit …

FAKTEN:
Grundfläche 781 m²
Rauminhalt 6.972 m³

Planung des zweiten Baus im Ensemble als Unterstellhalle für Campingwagen und deren Wartung. Im Obergeschoss wurden drei identische Büroeinheiten konzipiert, die modular miteinander verbunden werden können.
Stahlbeton-Skelettbau des Erdgeschosses mit großflächiges Sandwich-Paneel-Fassade. Das Obergeschoss wurde aus statischen Gründen als Holzständerbauweisen mit Holz-Flachdach entworfen um Nachhaltigkeit und Ökonomie zu gewährleisten.
Moderne Technik für Toranlagen und HLS-System in Kooperation mit Fachplanern.
Hohe klare Formen kombiniert mit einem zeitlosen Design.
Den funktionalen Wünschen des Bauherrn in einer kompakten Form entsprochen. 

LEISTUNGEN:

  • Grundlagenermittlung
  • Vorplanung
  • Entwurfsplanung
  • Genehmigungs- und Ausführungsplanung
  • Architekturdarstellung (3D)
  • Optimierung der Energieeffizienz im Gebäude
INN2BAU GmbH
Mehr Projekte anschauen

Inn2Bau GmbH
Isarstraße 1c
83026 Rosenheim