Die ursprünglich aus dem Jahr 1936 stammende Fliegerhalle ist nach dem Krieg von der US-Armee für militärische Zwecke mehrfach umgebaut und genutzt worden.
Heutige Nutzung durch produzierendes Gewerbe und Büroeinheiten.

STANDORT:
Nahe Rosenheim

ZEITPLAN:
Bauplanung 2015 - aktuell
Bauzeit 2017 - 2020

FAKTEN:
Grundstücksgröße: 7.248 m²
Bruttogeschossfläche: 6.580 m²

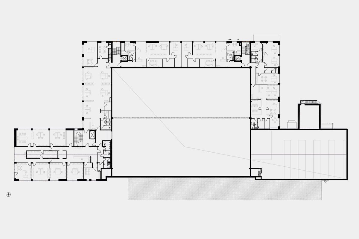
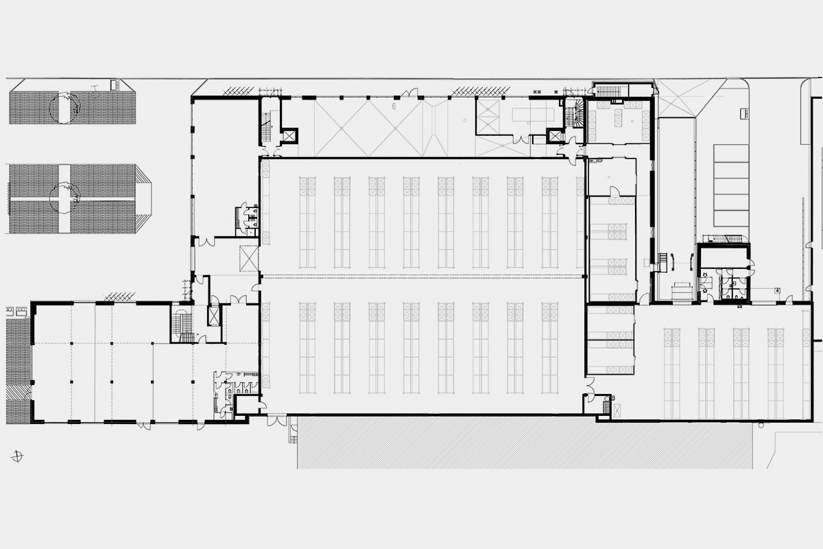
Komplette Sanierungs- und Revitalisierungsmaßnahmen aller Hallenteile auf dem früheren Kasernengelände. Teilweise komplett zurückgebaut sowie und abgebrochen.
Es entstand ein modernes Gewerbeobjekt mit großzügigen, funktionellen Produktions-, Lager- und Büroräumen entstanden, die bis heute immer wieder planerisch aktualisiert wird.
Umstrukturierung der Innenaufteilung um flexible und zeitgemäße Einheiten zu erhalten, abgerundet mit einer Holz- und Trespa-Fassade auf den Stahlbeton-Außenwänden.
An dem Objekt werden derzeit weiterhin Planungen vorgenommen um Wünschen neuer Interessenten gerecht zu werden. Insgesamt konnten bis zu 5.715 m² Mietfläche erzeugt werden. 

LEISTUNGEN:

  • Grundlagenermittlung
  • Vorplanung
  • Entwurfsplanung
  • Genehmigungs- und Ausführungsplanung
  • Koordination der Zusammenarbeit involvierter Fachplaner
INN2BAU GmbH
Mehr Projekte anschauen

Inn2Bau GmbH
Isarstraße 1c
83026 Rosenheim